
Feuerschutzschiebetor nach DIN EN 16034 und DIN EN 13241
System Schröders ST-2 | |
---|---|
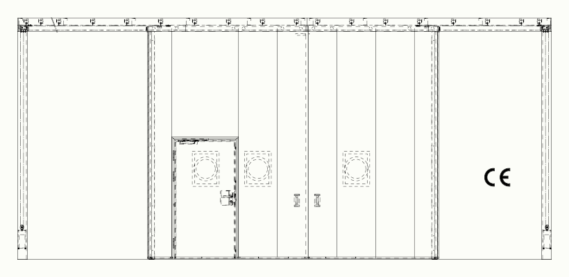
Zweiflügeliges Feuerschutzschiebetor EI230-Sa4-C2 nach EN 16034 |
|
|
|
Feuerschutz |
EI230-Sa4-C2 geprüft nach EN 1634 |
Wärmedämmung
(wahlweise) |
UD-Wert ≥ 1,3 W/(m²K) nach EN ISO 10077-1 |
Kombinierbar mit weiteren Leistungseigenschaften: |
|
Rauchschutz
(wahlweise) |
S200 geprüft nach EN 1634-3 |
Technische Beschreibung | |||||||||||
---|---|---|---|---|---|---|---|---|---|---|---|
Maßbereich
(Rohbaumaß) |
|
||||||||||
Türblatt |
Blattdicke 74 mm - glatt, doppelwandig
Paneelbauweise |
||||||||||
Aufhängung |
Unsichtbar hinter Blende
|
||||||||||
Dichtungssystem |
Elastische Gleichtdichtung RSS
abriebfest |
||||||||||
Verglasung
(wahlweise) |
Glasmaße und -form variabel Mindestfriesbreite: 130 mm
Glashalteleisten verschraubt |
||||||||||
Beschläge |
Muschelgriff mit zusätzlichem Stahl-Handgriff |
||||||||||
Verriegelung |
|
||||||||||
Schlupftür
(wahlweise) |
Dauerfunktion geprüft C5
|
||||||||||
untere Führung |
Verdeckt liegende Führungsrollen
|
||||||||||
Selbstschließung |
Schließgewicht oder Federseilrolle |
||||||||||
Antrieb
(wahlweise) |
Elektromotorischer Antrieb zum Öffnen |
||||||||||
Feststellanlage
(wahlweise) |
Allgemein bauaufsichtlich zugelassene Feststellanlage für Schiebetore |
||||||||||
Abdeckklappen
(wahlweise) |
Abdeckklappen für Tor-Nischen
|
||||||||||
Einbau |
|
||||||||||
Kennzeichnung |
|
||||||||||
Die Angaben beziehen sich auf übliche Ausstattungsvarianten. Bei der Kombination unterschiedlicher Leistungseigenschaften können individuelle Ausstattungen erforderlich werden. Die lizenzierten System Schröders Fertigungsbetriebe beraten Sie gerne bei der Planung Ihrer Anforderungen. |