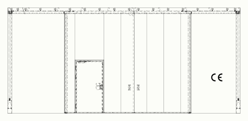
Feuerschutzschiebetor nach DIN EN 16034 und DIN EN 13241
| System Schröders ST-12 | |
|---|---|
                            Zweiflügeliges Feuerschutzschiebetor EI290-Sa4-C2 nach EN 16034 | 
                    |
| 
                             
                                  | 
                    |
| Feuerschutz | 
                             
                                EI290-Sa4-C2 geprüft nach EN 1634  | 
                    
| 
                            Wärmedämmung
                             (wahlweise)  | 
                        
                             UD-Wert ≥ 1,3 W/(m²K) nach EN ISO 10077-1  | 
                    
                            Kombinierbar mit weiteren Leistungseigenschaften: | 
                    |
| 
                            Rauchschutz
                             (wahlweise)  | 
                        
                             S200 geprüft nach EN 1634-3  | 
                    
| Technische Beschreibung | |||||||||||
|---|---|---|---|---|---|---|---|---|---|---|---|
| 
                            Maßbereich
                             (Rohbaumaß)  | 
                        
                            
  | 
                    ||||||||||
| Türblatt | 
                             
                                Blattdicke 74 mm - glatt, doppelwandig
                                 
 
                                Paneelbauweise  | 
                    ||||||||||
| Aufhängung | 
                             
                                Unsichtbar hinter Blende 
  | 
                    ||||||||||
| Dichtungssystem | 
                             
                                Elastische Gleichtdichtung RSS 
 
 abriebfest  | 
                    ||||||||||
| Beschläge | 
                             Muschelgriff mit zusätzlichem Stahl-Handgriff  | 
                    ||||||||||
| Verriegelung | 
                            
  | 
                    ||||||||||
| 
                            Schlupftür
                             (wahlweise)  | 
                        
                            
 
 Dauerfunktion geprüft C5 
  | 
                    ||||||||||
| untere Führung | 
                             
                                Verdeckt liegende Führungsrollen
                                  | 
                    ||||||||||
| Selbstschließung | 
                             Schließgewicht oder Federseilrolle  | 
                    ||||||||||
| 
                            Antrieb
                             (wahlweise)  | 
                        
                             Elektromotorischer Antrieb zum Öffnen  | 
                    ||||||||||
| 
                            Feststellanlage
                             (wahlweise)  | 
                        
                             Allgemein bauaufsichtlich zugelassene Feststellanlage für Schiebetore  | 
                    ||||||||||
| 
                            Abdeckklappen
                             (wahlweise)  | 
                        
                             
                                Abdeckklappen für Tor-Nischen
                                  | 
                    ||||||||||
| Einbau | 
                            
  | 
                    ||||||||||
| Kennzeichnung | 
                             
                                  | 
                    ||||||||||
| 
                             Die Angaben beziehen sich auf übliche Ausstattungsvarianten. Bei der Kombination unterschiedlicher Leistungseigenschaften können individuelle Ausstattungen erforderlich werden. Die lizenzierten System Schröders Fertigungsbetriebe beraten Sie gerne bei der Planung Ihrer Anforderungen.  | 
                    |||||||||||